Architects: Bogle Architects
Floor area: 10 000 m2
Project location: Prague, Czech Republic
Function: Office
Year: 2016-2018
Used Software: Revit (BIM), AutoCAD
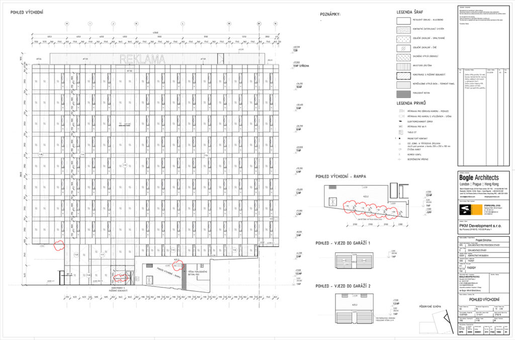
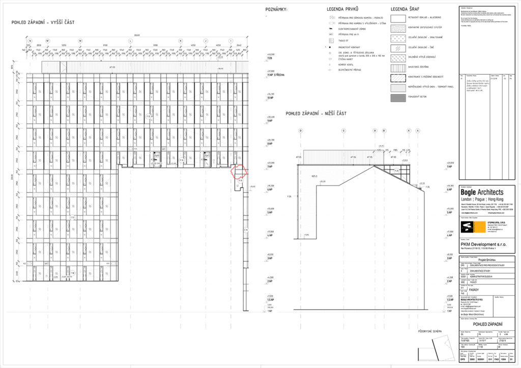
I joined this project in the stage of creating the building permit documentation. My role in this project was to create documentation for a building permit and detailed/execution drawings for tender in collaboration with our engineers, to collaborate with landscape architects in designing the garden and terraces, to design the interiors of common areas, and to supervise the whole design process, tendering, and construction including material sampling from an architectural point of view. The whole project was created in BIM software – Revit.
This particular segment shows the design of the facade created in Revit in the highest detail. I was personally involved in making the Revit model including all families and templates with stress on parametric design and coordination of structural, civil, electrical, and HVAC engineers.
I created all presented material except for renders which were created by our CGI team.









©Bogle Architects